Grazie alla sua posizione strategica vicino all’uscita autostradale di Bellinzona Sud, facilmente raggiungibile da Lugano e da Locarno, e situata a pochi metri dalla stazione FFS, lo spazio multiuso SalaRuna è il posto ideale per organizzare qualsiasi tipo di meeting nel cuore del Ticino.
Specifiche tecniche, possibili disposizioni e altre informazioni.
Tariffe base, condizioni e sconti per le aziende più fedeli.
Disponibilità, modalità di riservazione e altre informazioni utili.
Dotata di impianti tecnici d’avanguardia nell’ambito audiovisivo, Salaruna si rivela uno spazio multiuso moderno ed accogliente.
La sala è situata nella sede amministrativa di inclusione andicap ticino. I clienti della sala multiuso possono richiedere all’associazione un’offerta per la creazione di inviti, badge e altri generi di stampati.
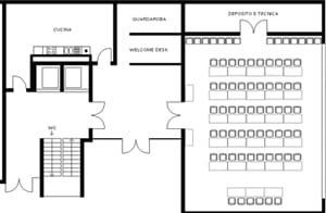
Salaruna può ospitare fino a 100 persone (la capienza varia in base all’allestimento prescelto). Nello spazio adiacente alla sala vi è inoltre un guardaroba, un distributore di bibite e bevade e una cucina che può essere utilizzata come stanza d’appoggio. A disposizione c’è inoltre un deposito per tecnica e attrezzi.
Durante i fine settimana, i giorni festivi e i giorni feriali dopo le ore 18.00 sono a disposizione 27 posteggi gratuiti. Vi è però anche la possibilità di lasciare l’auto nei posteggi pubblici poco distanti in Via Linoleum e Via 1814, al Mercato Coperto o in Piazza Grande a Giubiasco.
Le dimensioni della sala sono di 110mq (9m x 12m). A disposizione ci sono 30 tavoli (140cm x 60cm) e 100 sedie.

Salaruna può essere sfruttata per intero o in parte, poiché è divisibile in due sale (grande e piccola) grazie a dei pannelli divisori. Di seguito alcune proposte di allestimento:
Sala intera
Sala grande
Sala piccola
Installazione tecnica fissa e compresa nell’affitto:
Su richiesta:
Servizi tecnici supplementari: a pagamento. Sono erogati da EventMore SA, tel. 091 850 10 60, info@eventmore.ch – www.eventmore.ch.
Illuminazione: le diverse zone della sala possono essere illuminate in contempranea o singolarmente.
La sala può essere affittata per qualche ora, per giornate intere o per più giorni consecutivi.
A pagamento e su richiesta:
Le aziende che organizzano presso la nostra struttura più di tre eventi all’anno possono beneficiare, dalla 4a prenotazione in poi, di una riduzione del prezzo della sala del 10%.
Le organizzazioni senza scopo di lucro (comprovato da attestato) possono riservare la sala ad un prezzo speciale (15% di sconto sul prezzo di listino).
Guasti alla tecnica e danni alla sala
inclusione andicap ticino assicura una manutenzione regolare e professionale, ma non si assume responsabilità in caso di guasti alla dotazione tecnica, in particolare in caso di rottura della lampada del proiettore.
Danni causati alla struttura e alla dotazione tecnica vengono fatturati interamente all’utente.
Condizioni di annullamento
Riservazioni annullate almeno 20 giorni lavorativi prima della data riservata non sono soggette a penale. Se la riservazione è annullata dopo il termine indicato, verranno fatturati CHF 100.00 per costi amministrativi.
Scegliendo Salaruna si sostiene direttamente anche l’associazione inclusione andicap ticino che da anni promuove le pari opportunità delle persone con disabilità, ne difende i diritti, offre concrete possibilità di lavoro e crea occasioni di socializzazione.
Per prenotare lo spazio basta inviarci una richiesta tramite modulo online. La richiesta è una pre-riservazione e sarà da considerarsi definitiva solo dopo una nostra conferma scritta.
modulo per la pre-riservazione